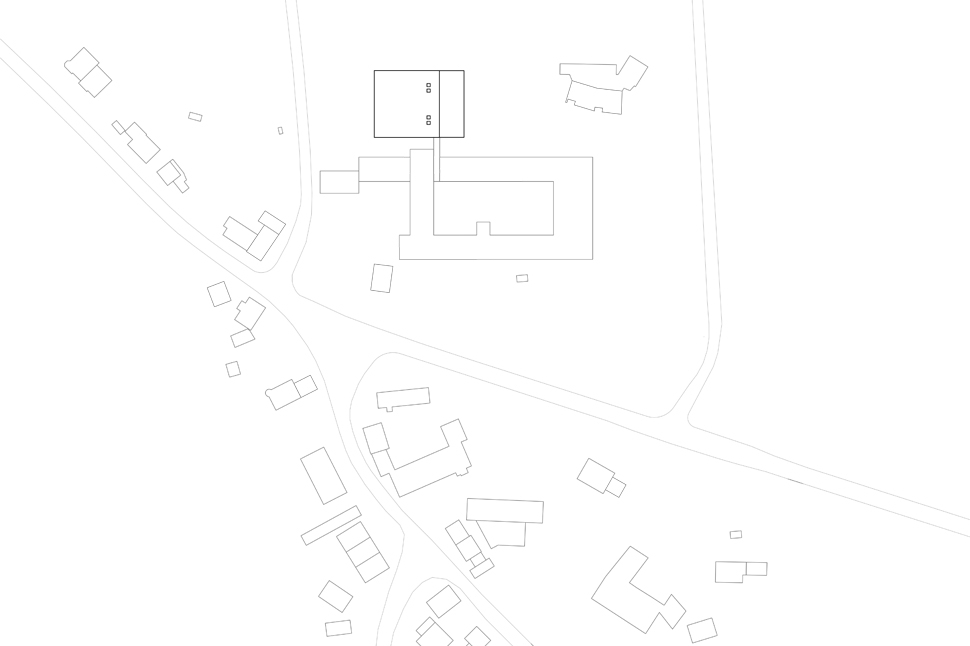
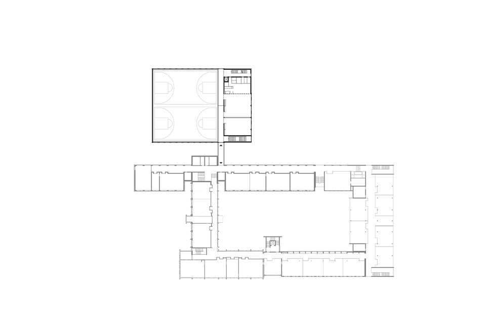
Sporthalle Affing-Bergen
Neubau einer Zweifachsporthalle inklusive Ganztagesbereich mit einem Dachtragwerk aus Holzbindern.
Bauherr
Landkreis Aichach-Friedberg
Leistungsumfang
LPH 2-8 HOAI
Erstellung Brandschutzkonzept
VOF Zuschlag 04l2014
Planungsbeginn 07l2014
Fertigstellung 09I2017















