Fortbildungsinstitut
der Bayerischen Polizei Ainring
Neubau eines Fortbildungsinstituts der Bayerischen Polizei mit Sporthalle, Seminarräumen und Raumschießanlage. Ausführung des Dachtragwerks und der Decke in Holzbauweise.
Bauherr
Bayerisches Staatsministerium des Inneren für Bau und Verkehr
Leistungsumfang
LPH 2-9 HOAI
Erstellung Brandschutzkonzept
In Zusammenarbeit mit:
LMJD Architekten (LPH 5-9)
AIS Baumanagement (LPH 8-9)
VOF Zuschlag 08l2016
Planungsbeginn 12l2016
Fertigstellung 10I2020













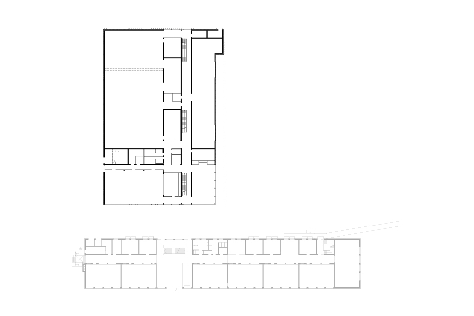
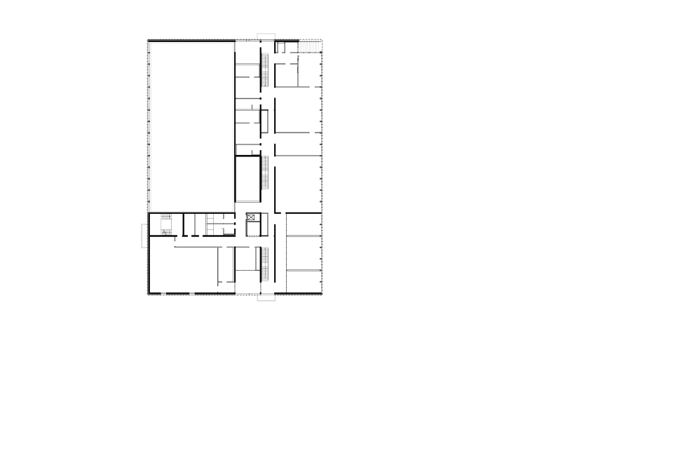
Der zweigeschossige Neubau befindet sich etwas zurückgesetzt von der Straße auf dem Grundstück der Bayerischen Polizei in Ainring und fügt sich neben dem bestehenden Lehrsaalgebäude ein.
Die Erschließung erfolgt durch das Lehrsaalgebäude A im Süden auf Erdgeschossniveau bzw. durch eine barrierefreie Tunnelverlängerung im Untergeschoss. Zusätzlich kann das Gebäude von der Heubergstraße über einen neu geschaffenen Vorplatz ebenerdig erschlossen werden.
Im Inneren ist das Gebäude durch eine Nord-Süd orientierte Erschließungszone, an die sich die heterogenen Nutzungen reihen, strukturiert. Durch diese Ausrichtung besteht die Möglichkeit einer späteren Neubauanbindung im Norden.
Im Süden und Osten öffnet sich der Neubau im Bereich des Foyers und des Hörsaals zu den angrenzenden Freianlagen und stellt so Bezug zwischen dem neuen Vorplatz, den Sportfreiflächen und den Bestandsgebäuden her.