Doemens Brauerei-Akademie
Neubau eines Verwaltungs- und Schulungsgebäudes
Bauherr
Doemens e.V.
Doemens Academy GmbH
Leistungsumfang
LPH 1-5
Erstellung Brandschutzkonzept
VGV Zuschlag 06l2017
Planungsbeginn 06l2017
Fertigstellung 09I2021











Mit dem Neubau für Doemens e.V. wurde ein identitätsstiftendes Bildungszentrum mit Technikum, auf dem neuesten Stand ausgestattete Schulungs- und Seminarräume, Laborräume mit modernsten Analysemethoden für CTA und Mikrobiologie und ein kommunikativer Speisesaal inkl. Verpflegungsküche umgesetzt.
Dem Gebäudekonzept entsprechend differenziert sich das äußere Erscheinungsbild in Sockel und Obergeschosse mit Fluchtbalkonen. Der Sockelbereich wiederum stellt sich monolithisch dar mit geschlossenen Wandflächen aus einer hinterlüfteten Fassade aus Faserzement und transparenten Bereichen für gezielte Ein- und Ausblicke.
Die zweischichtige Fassade der Obergeschoße wird funktionsentsprechend geschlossen oder transparent, mit Brüstungselementen oder raumhoch verglast ausgeführt.
Gestaltprägend ist die Struktur des umlaufenden Fluchtbalkons mit großformatigen Drehlamellen, die vollautomatisch den außenliegenden Sonnenschutz darstellen. Das kompakte Gebäude ist in den Obergeschossen als Kamm organisiert, mit einem Rücken parallel zur Lohenstraße und der Ablesbarkeit der 3 Baukörper nach Norden.
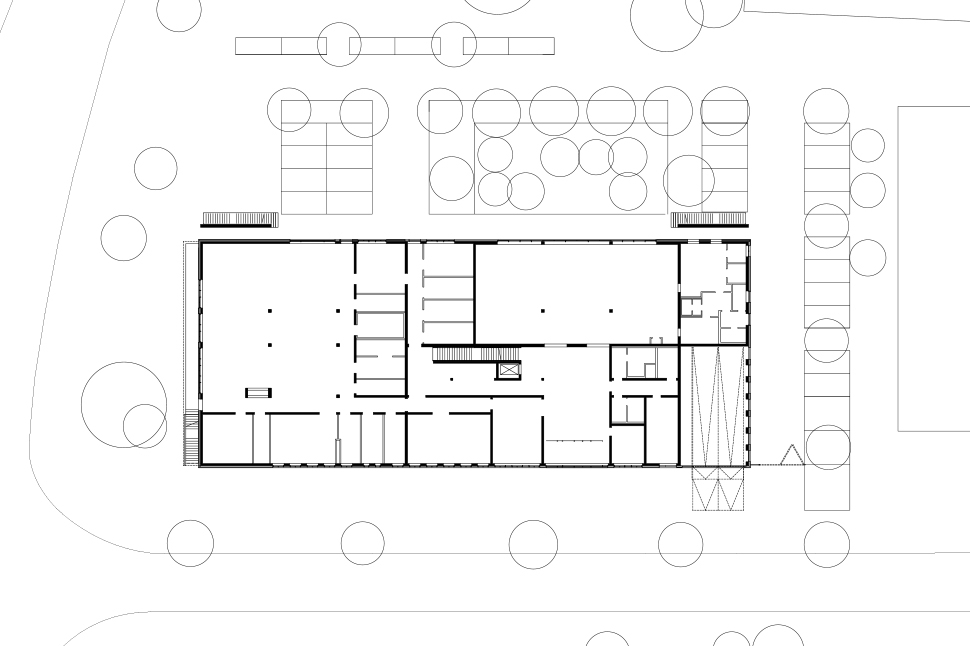
Die Mittelzone beinhaltet eine zentrale Erschließungszone, zwei kommunikative Pausenzonen und zwei Nebenraum-/ Technikzonen. Im westlichen Baukörper der Obergeschosse werden Auftragslabor (1. OG) und Praktikumslabor (2. OG) angeordnet, im östlichen die Verwaltungs- und Lehrerbereiche. Der Mittelbereich bildet im 1. OG Seminarbereich und im 2. OG den Schulbereich ab. Im Erdgeschoss werden Verpflegungsbereich, die Lernwelt und der zentrale Eingangsbereich angeordnet, im westlichen Teil die fachpraktischen Unterrichtsbereiche inkl. Brennerei, Mälzerei, Sudhaus und Abfüllanlage.
Die schachbrettartigen Freianlagen mit intensiven Grünflächen sichern attraktive Außenraumbezüge für die Arbeits- und Ausbildungsplätze. Sie sollen für Pausennutzung, Außenunterricht, und Erholung zur Verfügung stehen und ergänzen die Verpflegungsbereiche des Erdgeschoßes im Sinne eines thematisch naheliegenden Akademiegartens. Die zwei dreiseitig gefassten Innenhofbereiche im 1. OG stehen als Ergänzung der kommunikativen Zonen im 1. OG zur Verfügung.