Augustenburg-Gemeinschaftsschule
Neubau der Stadtbibliothek und Erweiterung der Gemeinschaftsschule zur dreizügigen Grundschule mit Ganztagsbereich, 2.5 zweizügigen Sekundarstufe mit Inklusion, Lernclustern, Fachklassen, Ganztagsbetreuung, Verwaltung und Mensa in Karlsruhe Grötzingen
Bauherr
Stadt Karlsruhe
Leistungsumfang:
LPH 2-9 HOAI
In Zusammenarbeit mit:
Philipp Kern Architekten (LPH 8-9)
Wettbewerb 1. Preis 09l2014
Planungsbeginn 01l2015
Fertigstellung 04I2019














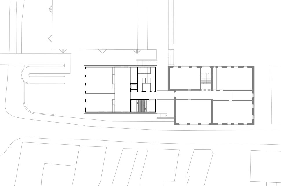
Am Standort der Grund- und ehemaligen Hauptschule in Karlsruhe Grötzingen wurde mit dem Schuljahr 2012 l13 eine Gemeinschaftsschule für die Sekundarstufe eingeführt. Die Augustenburg-Gemeinschaftsschule soll dauerhaft als 3-zügige Primarstufe mit Ganztagesbetrieb und 2,5 zügiger Sekundarstufe (3 Jahrgänge 3-zügig, 3 Jahrgänge 2-zügig) mit Inklusion fortgeführt werden.
Diese Schuleinrichtung wurde unter anderem in einem Gebäudekomplex aus den 50er-Jahren mit einem Erweiterungsbau aus den 70er-Jahren und in einem denkmalgeschützem Schulgebäude aus dem Jahre 1902 mit ebenfalls einem Anbau aus den 70er-Jahren untergebracht. Der Erweiterungsbau aus den 70er-Jahren, in dem Teile der Gemeinschaftsschule untergebracht wurden, war Asbest
belastet, eine Asbestentsorgung wurde kurzfristig durchgeführt. Das Gebäude wurde geschlossen und wird derzeit durch Containerprovisorien auf dem Schulgelände ersetzt. Das Bestandsgebäude wird abgerissen und durch einen Neubau ersetzt. Der Anbau am denkmalgeschützten Schlossschulgebäude (Grundschule) ist stark renovierungsbedürftig und wird ebenfalls abgerissen und durch einen neuen Baukörper ersetzt.
Die Fehlfläche setzt sich aus Teilen der Gemeinschaftsschule, aus Funktionsbereichen des Ganztagesbetriebes des Grundschulbereiches und einer kleinen Stadtteilbibliothek zusammen.