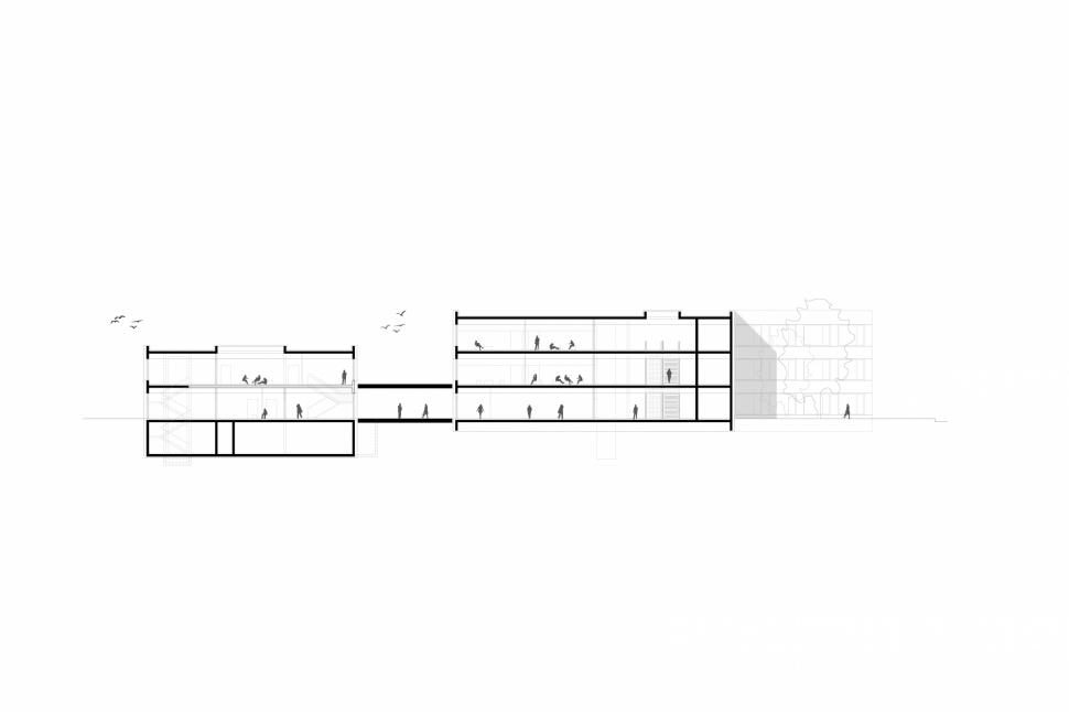
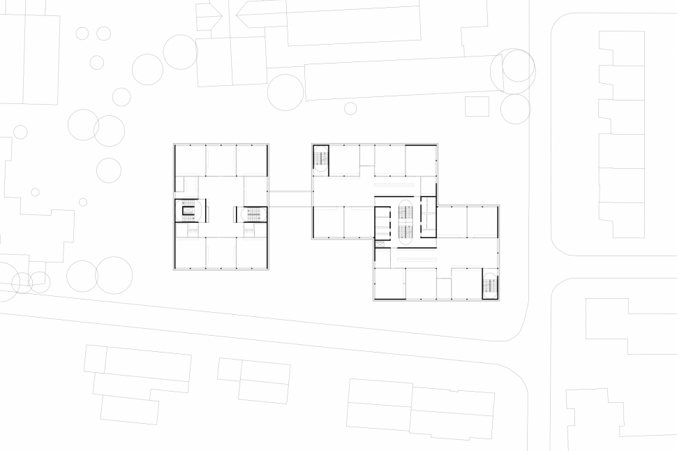
Grundschule und Mittagsbetreuung Oberasbach

Die Stadt Oberasbach beabsichtigt im städtischen Pestalozzi-Schulzentrum den Neubau einer Mittagsbetreuung für 200 Kinder
und einer 4-zügigen Grundschule. Das Projekt wird in zwei Bauabschnitten realisiert – zunächst entsteht die neue Mittagsbetreuung, anschließend folgt die Grundschule.
 
Bauherr
Stadt Oberasbach
 

Leistungsumfang
LPH 1-9 HOAI

VGV Zuschlag 12I2024
Planungsbeginn 01I2025

Photos Schwinde Architekten

Fotos Schwinde Architekten
Josef-Schwarz-Weg 11
81479 München
T +49 (0) 89 - 539 0 649 - 10
F +49 (0) 89 - 539 0 649 - 28