Erweiterung von Ganztagesbetreuung, Verwaltung, Fachklassen und zwei Lernhäusern,
Neubau einer Dreifachsporthalle
Bauherr
Landeshauptstadt München
Leistungsumfang
LPH 2-5 HOAI
Erstellung Brandschutzkonzept
In Zusammenarbeit mit:
LMJD Architekten (LPH 5)
VOF Zuschlag 04l2012
Planungsbeginn 01l2014
Fertigstellung 09I2021







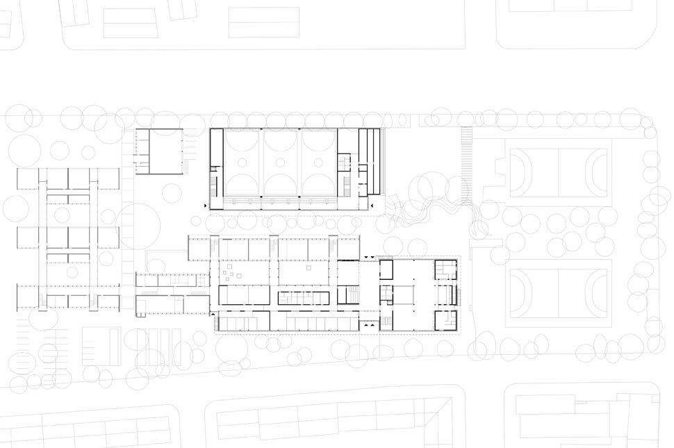
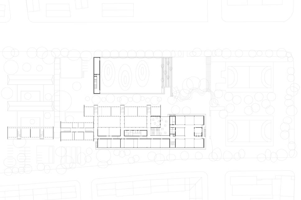
Der bestehende Schulkomplex der Grund- und Mittelschule in der Schrobenhausener Straße bleibt im Bereich der Mittelschule vollständig erhalten. Die Sanierungsmaßnahmen werden auf ein Minimum beschränkt, die Flucht- und Rettungswege sowie die Raumkonfigurationen bleiben erhalten.
Die eigentliche Schulerweiterung erfolgt an der Schrobenhausener Straße mit einem zweigeschossigen Baukörper mit Verwaltung im Erdgeschoss und Fachklassen im 1. OG sowie einem viergeschossigen Baukörper mit Speisesaal und Küche im EG, Ganztagesbereich im 1.OG und Lernhäuser im 2. Und 3. OG. Die Fuge zwischen den Gebäudeteilen bildet den neuen Haupteingang der Schule mit neuer Adressbildung. Der Speisesaal im Erdgeschoss wird für 300 Sitzplätze konzipiert. Die neue Sporthalle wird östlich im Bereich des derzeitigen Pausenhofs angeordnet und um eineinhalb Geschosse unter Berücksichtigung der Grundwassersituation abgesenkt. Das Dach der Sporthalle wird als Pausenfläche angeboten. Die Belichtung der Sporthalle wird durch Oberlichter gewährleistet. Die Dreifachsporthalle soll als Versammlungsstätte mit einer maximalen Personenzahl von 400 Personen umgesetzt werden.