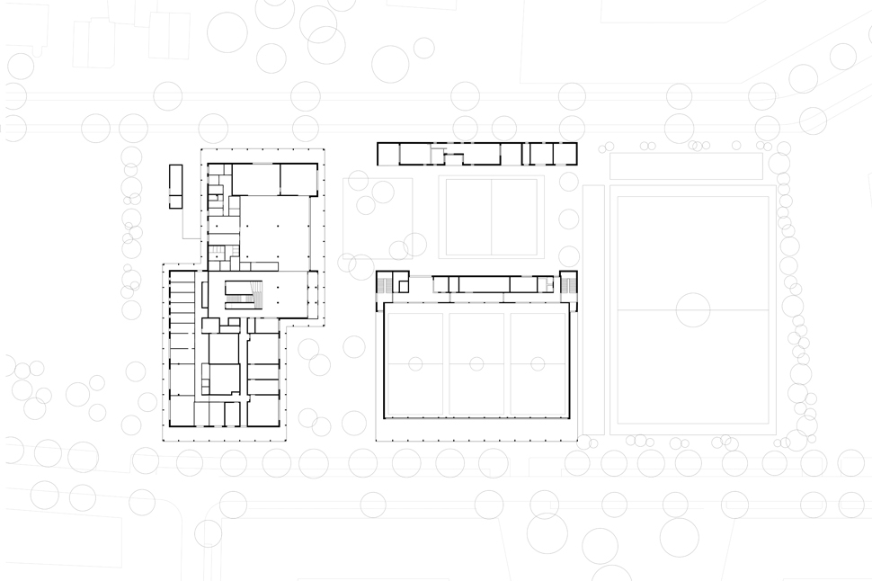
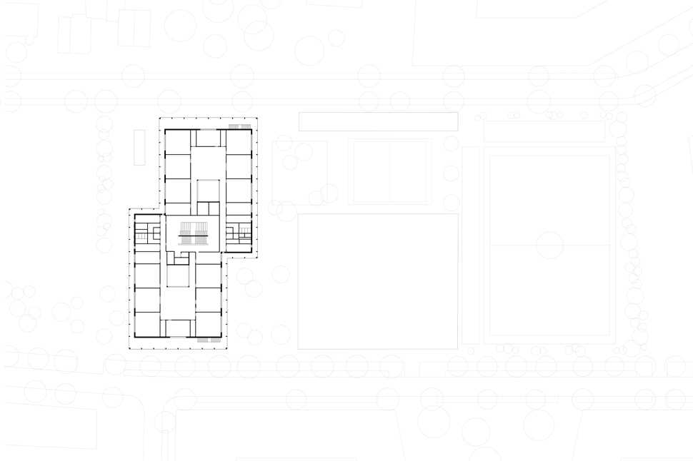
Grundschule Hermine-von-Parish-Straße
Neubau einer 6-zügigen Grundschule, Fachklassen für Werken, Gestaltung und Mehrzweckraum im Erdgeschoss, einer Tiefgarage, einem Speisesaal mit Nutzungsmöglichkeit als Versammlungsstätte für 300 Personen, einer Dreifachsporthalle und einem Patiohaus mit Wohnung der technischen Hausverwaltung im Neubaugebiet Hermine-von-Parish-Straße in Neupasing.
Bauherr
Landeshauptstadt München
Referat für Bildung und Sport
Baureferat Hochbau (Projektleitung)
Leistungsumfang
LPH 2-9 HOAI
Erstellung Brandschutzkonzept











