Finanzamt Obernburg mit Bearbeitungsstelle Nürnberg Nord
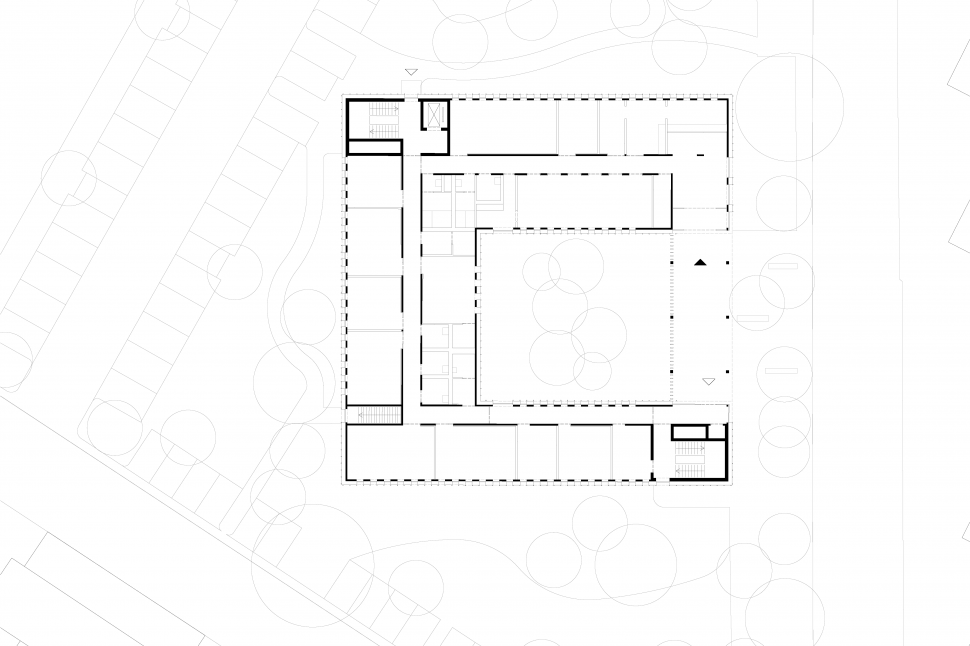
Neubau eines Verwaltungsgebäudes für das Finanzamt Obernburg am Main und die Bearbeitungsstelle Nürnberg Nord in der Stadt Obernburg in Holzbauweise.
Bauherr
Freistaat Bayern vertreten durch das Staatliche Bauamt Aschaffenburg
Leistungsumfang
LPH 1-9 HOAI
Erstellung Brandschutzkonzept
VGV Zuschlag 03l2022
Planungsbeginn 04l2022






