Sportzentrum Passau
Neubau einer Dreifachsporthalle mit Zuschauergalerie, Lauf- und Weitsprunganlage und Tiefgarage
Bauherr
Stadt Passau
Leistungsumfang
LPH 1-9 HOAI
Erstellung Brandschutzkonzept
In Zusammenarbeit mit:
Aidenberger Architekten (LPH 8)
VOF Zuschlag 11l2012
Planungsbeginn 01l2013
Ausführung 01I2017 - 09I2018













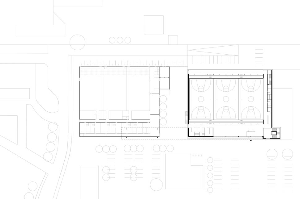
Das Grundstück der neuen Sporthalle ist zum einen durch das Vorfeld zur Neuburgerstrasse gekennzeichnet, zum anderen durch die Topographie des nördlich abfallenden Geländes mit Blickbeziehungen zum gegenüberliegendem Donauufer. Im Osten schließen die Baukörper der Wirtschaftsschule an, im Westen das Berufsschulzentrum. Die neue Sporthalle wird baukörperlich analog zur bestehenden Halle hangparallel angeordnet. An der Südseite entsteht eine übergeordnete Wegeverknüpfung Wirtschaftsschule - Berufsschule (Magistrale). Die Erschließung der Tiefgarage erfolgt über die tieferliegende Nordseite.
Die lineare Struktur des Laufbahnköpers verknüpft die zwei Sporthallen im 1.OG und schafft zum Vorplatz eine entsprechende Prägnanz.
Die Sporthalle wird sowohl für Schulnutzung als auch für Sportaktivitäten durch Vereine genutzt. Durch ein abgesenktes Spielfeld wird die Sporthalle auf der Zuschauerebene betreten.
Eine ergänzende Nutzung stellt die Lauf- und Weitsprunganlage dar, die als eigenes Bauteil im 1.OG eine Verbindung zur bestehenden Sporthalle darstellt.
Die Sporthalle wird als Versammlungsstätte für bis zu 600 Zuschauer ausgebildet. Die Zuschauerbereiche sind an den beiden Längsseiten der Halle angeordnet. Im kleinen Maßstab kann so „Arena“ - Atmosphäre geschaffen werden. Die direkte Anordnung des Foyers an den südlichen Zuschauerbereich ermöglicht eine sinnvolle Bespielung. Dem Foyer ist eine kleine Ausgabe mit Küche angegliedert.
Umkleidebereiche werden auf Spielfeldebene angeordnet, sinnfällig ebenso die Geräteräume. Auf der Ebene unter Sporthalle wird eine natürlich belüftete, offene unterirdische Parkebene erstellt mit 100 Stellplätzen. Die Zufahrt erfolgt über eine offene Rampe, die natürliche Belüftung erfolgt über einen großzügigen Lichtschacht.