Berufliches Schulzentrum Schweinfurt
Neubau Berufliches Schulzentrum Alfons Goppel
Bauherr:
Landratsamt Schweinfurt
Leistungsumfang:
LPH 1-9 HOAI
Planungsbeginn: 11I2018
VGV Zuschlag: 11I2018
Ausführung 07I2020 - 08I2023












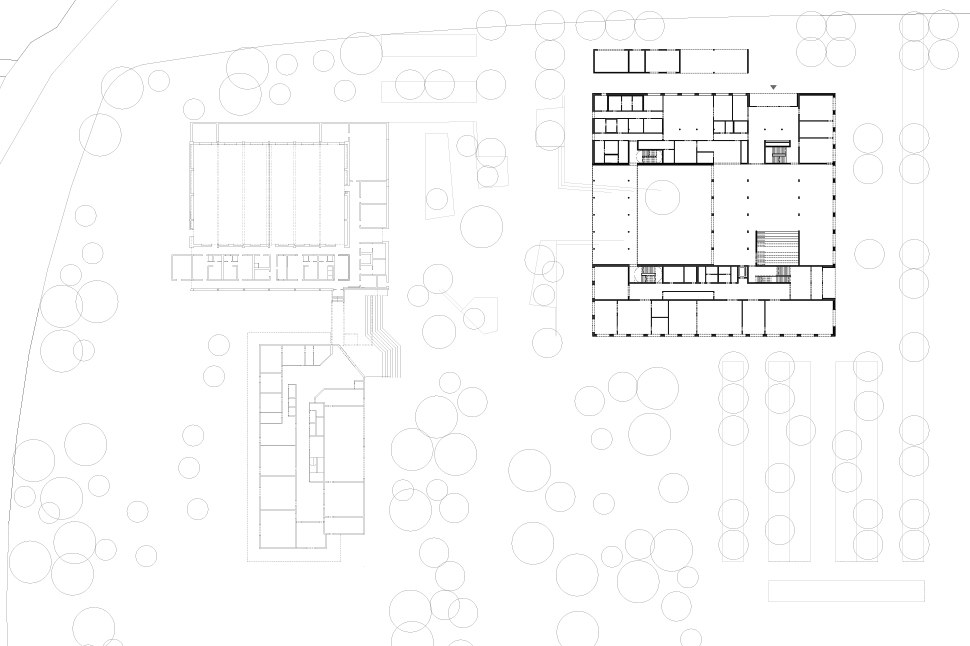
Der Landkreis Schweinfurt beabsichtigt die Errichtung eines Ersatzneubaus für das berufliche Schulzentrum an der Geschwister Scholl Straße. Das Bestandsgebäude wird nach Fertigstellung abgebrochen, bleibt jedoch während der Bauphase in Betrieb. Das sanierte Gebäude der Fachakademie bleibt erhalten.
In einer Parallelplanung wird die Bestandsdoppelsporthalle saniert und geringfügig erweitert.
Vorläufig bleibt auch das Werkstattgebäude im südlichen Grundstücksbereich erhalten.
Ein kompakter viergeschossiger Neubau des Berufsschulzentrums mit Innenhof definiert den Endpunkt der Geschwister- Scholl Straße. Der Baukörper stellt einen städtebaulichen Anker- und Drehpunkt her, die übrigen Baukörper ordnen sich unter.
Mit einer Durchlässigkeit im Erdgeschoss nach Westen werden Verknüpfungen zur Sporthalle hergestellt. Mittelpunkt des Baukörpers ist die Aula mit Mensa und Mehrzwecksaal. Die Theorie und Praxisräume werden kompakt in den drei Obergeschosse ringförmig um ein mit viergeschossiges Atrium und einen großzügigen Innenhof gestapelt.