Berufskolleg Wirtschaft und Verwaltung
Erweiterung mit Unterrichtsräumen und technischen Lehrsälen
Bauherr
Kreis Siegen-Wittgenstein
Leistungsumfang
LPH 1-7 HOAI
Wettbewerb 1. Preis 11l2000
Planungsbeginn 01l2001
Ausführung 05l2003 - 08l2005
Auszeichnungen
BDA Preis Arnsberg-Südwestfalen Anerkennung 2006







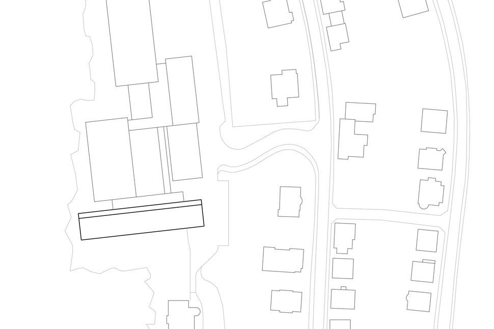
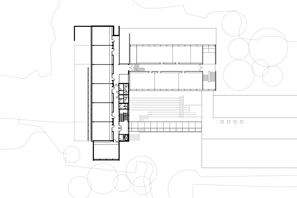
Das bestehende „Schulzentrum am Hang“ wird am südlichen Gebäudeende ergänzt durch den quer zum Hang ausgerichteten Erweiterungsbau unter Beibehaltung der bestehenden Gebäudehöhen. Die kompakte Lösung trägt den ökologischen und ökonomischen Gesichtspunkten Rechnung, wobei eine Differenzierung im Inneren und im Äußeren die Identifikation der Schüler fördern soll. Die Baukörper sind nutzungstechnisch eindeutig ablesbar.
So zeichnen sich im zweigeschossigen Sockel die Fachräume ab, die zum baulich gefassten Patio orientiert sind.
Darüber legt sich ein dreigeschossiger nach Süden orientierter Klassentrakt, der nach Osten auskragt. Verbunden werden die beiden Baukörper durch das fünfgeschossige nördliche Erschließungsbauteil, das gleichzeitig als Bindeglied zum Bestand genutzt wird. Dieser Bauteilausbildung entsprechend kommen zwei architektonische Prinzipien zur Anwendung. Zum einen die Verzahnung von Sockel und Patio mit dem Naturraum und zum anderen das „Loslösen“ des Klassentraktes von der Natur, um diese zu inszenieren. In den beiden Sockelgeschoßen ist eine behindertengerechte Verknüpfung mit dem zentralen Foyer gegeben, die sich im 1.Obergeschoss mit den Verkehrsflächen des Bestandsbauteil B zu einer Runderschließung ergänzt. Durch die Übernahme der Gebäude- und Geschoßhöhe von Bauteil B können mit dem Aufzug alle Ebenen, sowie das Vorplatzniveau behindertengerecht erreicht werden. Durch das Querstellen des Erweiterungsbaus zum Hang entstehen zwei neue Außenräume mit unterschiedlichen Qualitäten. Zum einen entsteht im Norden ein Hof zwischen dem Erweiterungsbau und dem Bestand, der als Pausenfläche genutzt wird und durch Sitzstufen sowie einer Baumbepflanzung aufgewertet wird. Zum anderen entsteht im Süden ein Patio mit kontemplativer Atmosphäre, der den Ausblick in den Wald wie auch auf die Villa Klingspor inszeniert.