FOS BOS Unterschleißheim
Neubau von Unterrichtsräumen in Clustern, Fachklassen, Werkstätten, Mittagsbetreuung und Verpflegung, Tiefgarage und Dreifachsporthalle
Bauherr
Landkreis München
Leistungsumfang
LPH 1-9 HOAI
In Zusammenarbeit mit:
Wenzel und Wenzel Architekten (LPH 8-9)
VOF Zuschlag 11l2011
Planungsbeginn 12l2011
Ausführung 10l2012 - 09l2014
















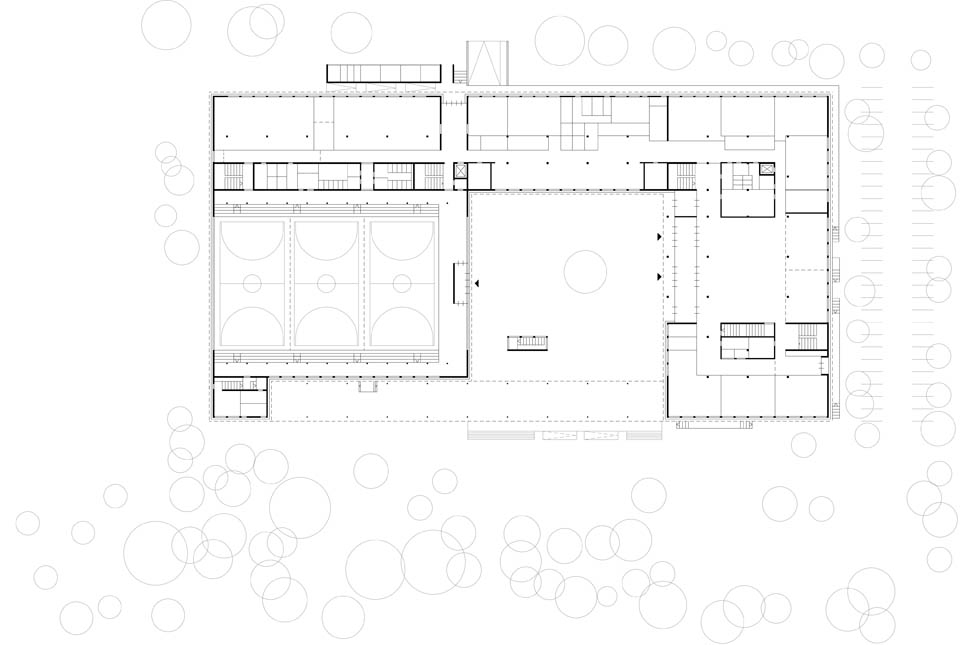
Durch das berufliche Schulzentrum sollen im heterogenen Umfeld stadträumliche Qualitäten geschaffen werden. Der Grünraum mit Baumkulisse wird dabei genutzt, um mit dem zweigeschossigen Sockel des Gebäudes einen boulevardartigen Erschließungs- und Freiraumbereich zu definieren, der die Besucher in die Mitte der Schule führt. Dieser zentrale Eingangsplatz für Schule und Sporthalle wird durch einen kolonnadenartigen Filter gefasst. Gleichzeitig findet sich hier die Mittagsbetreuung mit Außenraumbezug. Mit der südlichen Anordnung des hohen Schulgebäudes werden Bezüge zur künftig anschließenden Bebauung hergestellt. Der ruhende Verkehr wird weitgehend in dem natürlich belüfteten Sockel angeordnet.
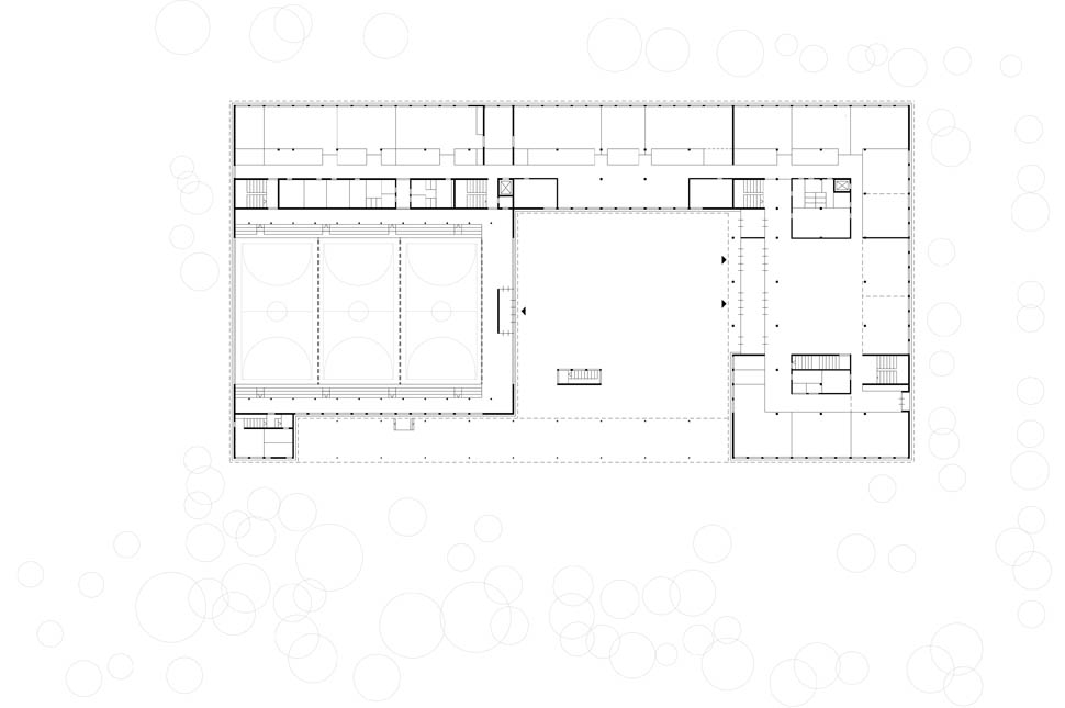
Das Schulzentrum besteht grundlegend aus zwei Elementen, dem zweigeschossigen Sockel mit Sporthalle, Werkstätten und Zentralbereich und aus dem dreigeschossigen Theorietrakt. Der Schulbaukörper ist ringartig um ein Atrium organisiert, welches im 1.OG als Luftraum für die zentrale Aula dient. In den Geschossen 2 bis 4 wird das Atrium zum Außenraum (Innenhof). Dies erleichtert die Orientierung im Gebäude und schafft eine kommunikative Atmosphäre sowie Blickbeziehungen. In den Obergeschossen werden jeweils zwei Fachcluster mit attraktiven mehrfach nutzbaren Aufenthaltszonen kombiniert. Diese Zonen bieten Ausblicke bei Aufenthaltszonen und Einblicke in den Innenhof. Auch die Arbeitsinseln werden dem Innenhof zugeordnet und somit natürlich belichtet. Im Sockelgeschoss sind Verwaltung, Lehrerbereich und zentrale Räume angeordnet. Der zweigeschossige Werkstattbereich wird linear organisiert. Durch das abgesenkte Spielfeld kann die Sporthalle in das zweigeschossige Konzept der Schulanlage integriert werden. Der Wettkampfnutzung entsprechend, können die Zuschauer so die Zuschauerränge an den beiden Längsseiten ebenerdig erreichen. In Kombination mit dem Foyer wird die Nutzung der Halle als Veranstaltungsraum der Schule unterstützt.
Fassade
Drehbare Vertikallamellen mit den Abmessungen 45 x 330cm werden als Permanentverschattungsanlage eingesetzt, die den Wärmeeintrag für das Gebäude wirkungsvoll und witterungsunabhängig verhindern und gleichzeitig natürliches Licht in den Klassen optimieren und Ausblicke ermöglichen.
Die Lamellen werden auf auskragenden Stahlschwertern weit vor der Fensterkonstruktion angeordnet, um den vollen Drehradius zu schaffen. Die Stellung der eloxierten Alulamellen mit Streckmetallfüllung passen sich automatisch an den jeweiligen Sonnenstand, Wind und Temperatur an.
So entsteht zum einen ein spannungsvolles Spiel aus offenen und geschlossenen Elementen, zum anderen verstärken die Lamellen im geschlossenen Zustand die homogene Körperlichkeit des Gesamtensembles.