Staatliche Realschule Vaterstetten
Erweiterung von Unterrichtsräumen, Fachklassen, Mensa, Ganztagesbetreuung, Verwaltung und Lehrerzimmer, Erweiterung der Sporthalle um eine Halleneinheit, Sanierung der bestehenden 2-fach-Sporthalle
Bauherr
Zweckverband Staatliche Realschule Vaterstetten
Leistungsumfang
LPH 1-9 HOAI
Erstellung Brandschutzkonzept
VOF Zuschlag 02l2014
Planungsbeginn 03l2014
Fertigstellung 03l2017













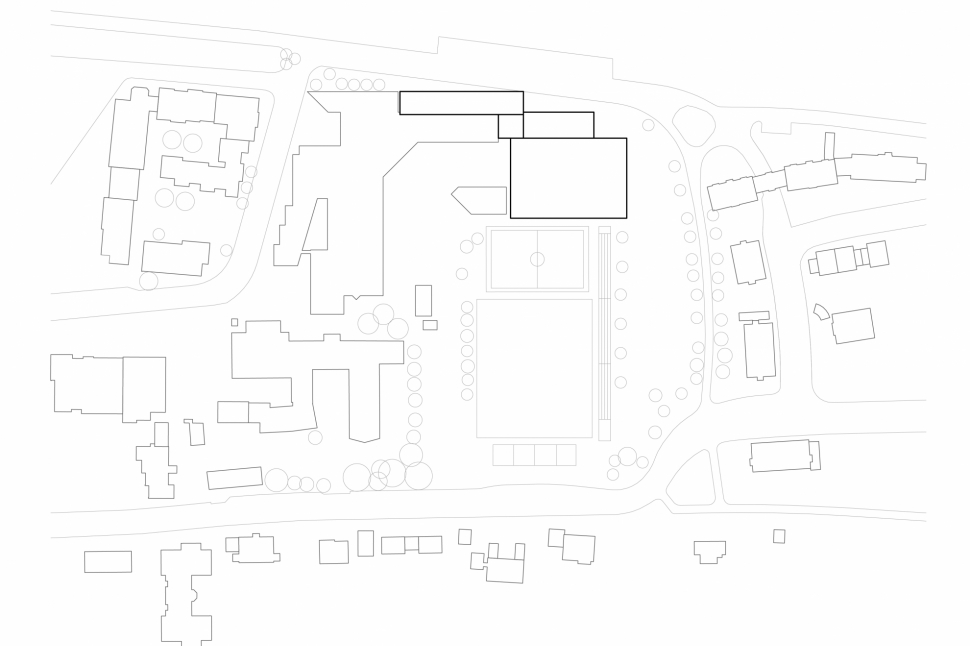
Die bestehende zweigeschossige L-artige Anlage der Realschule Vaterstetten wurde bereits durch eine gestaffelt angeordnete Baustruktur im Westen erweitert. Die bestehende Doppelsporthalle schließt im Osten an die Gebäudestruktur an. Nach Südosten öffnet sich der Pausenhof und die Sportfreiflächen.
Aufgrund der nördlich verlaufenden Bahntrasse wurden in der Nordspange bisher lediglich Kunst- und Werkräume mit Nebenräumen in den Obergeschossen sowie das Lehrerzimmer untergebracht.
Für das Erweiterungskonzept soll dieser Baukörper im Norden teilweise abgebrochen werden und folgend ein- bzw. zweigeschossig auf das bestehende Untergeschoss aufgestockt werden. Hierdurch werden zusätzliche Grundstücksversiegelungen vermieden. Die dritte Sporthalleneinheit wird analog der bestehenden Hallen als Anbau im Osten ergänzt. Die Planung der Erweiterungsmaßnahmen zielt darauf ab, die städtebauliche Grundstruktur zu erhalten und mit maßvollen Setzungen die Freiräume und den nördlichen Straßenrand zu stärken.
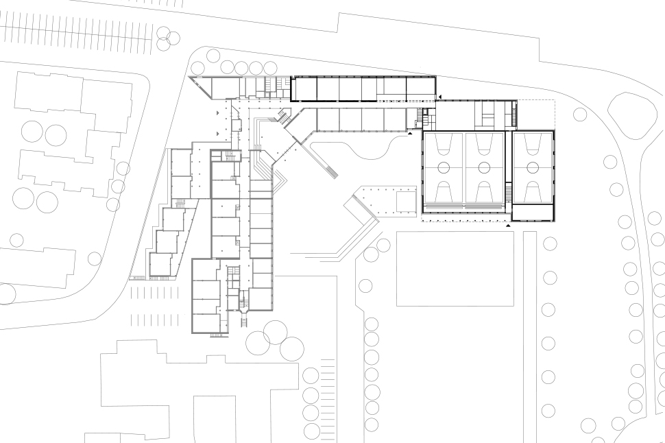
Da bestehende Flure für die Erschließung genutzt werden können, entsteht ein sehr kompakter, zweibündiger Baukörper über drei Geschosse mit Unterrichtsräumen, Musik- und Werkräumen sowie dem Ganztagesbereich. Im Norden der Bestandssporthalle wird die Mittagsbetreuung eingeschossig angeordnet. Am funktionell sinnvollen Nebeneingang für Sporthalle und Mittagsbetreuung wird die neue Schülerbibliothek positioniert. Hier wird eine Synergie mit dem Ganztagesbereich angestrebt.
Eine naturwissenschaftliche Fachklasse mit Nebenraum, zwei IT-Räume sowie ein zentrales Lehrerzimmer mit integrierter Lehrerbibliothek werden im Bestand adaptiert.
Die künftig drei Halleneinheiten werden sowohl für Schulnutzung als auch für Sportaktivitäten genutzt.
Das Erweiterungskonzept sieht eine sinnfällige Ergänzung einer Sporthalleneinheit nach Osten vor, die Struktur der Doppelsporthalle wird fortgesetzt. Aufgrund der geometrischen Abbildung einer Dreifachsporthalle ist im Endausbau denkbar, eine Zusammenschaltung der drei Hallenteile anzubieten und hiermit den Gesichtspunkten der Vereinsnutzung weiter zu entsprechen.