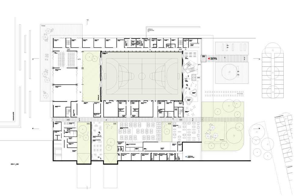
Sportcamp Nordbayern Bischofgrün
Neubau eines Sportcamps bestehend aus Unterkunftszimmern, gastronomischen Einrichtungen, Sport- und Freizeitmöglichkeiten, einschließlich Dreifachsporthalle, Fitnessbereich und Regenerationsbereich, sowie Seminar- und Gruppenräume.
In Zusammenarbeit mit:
realgrün Landschaftsarchitekten, München
Ingenieurbüro Rabenstein, Bischofgrün
Zinterl Architekten ZT GmbH
Wettbewerb
04l2017
Kenndaten
BGF 9.800 m²
Anerkennung






